office (+44) -203-6954041
(+44) -7954-777678
CARMARTHEN
Locate at the centre of Carmarthen, the oldest city South Wales city
of the legend, city of Merlin.
It is 20 meters away only from the castle. It was a parliamentary library in 1820
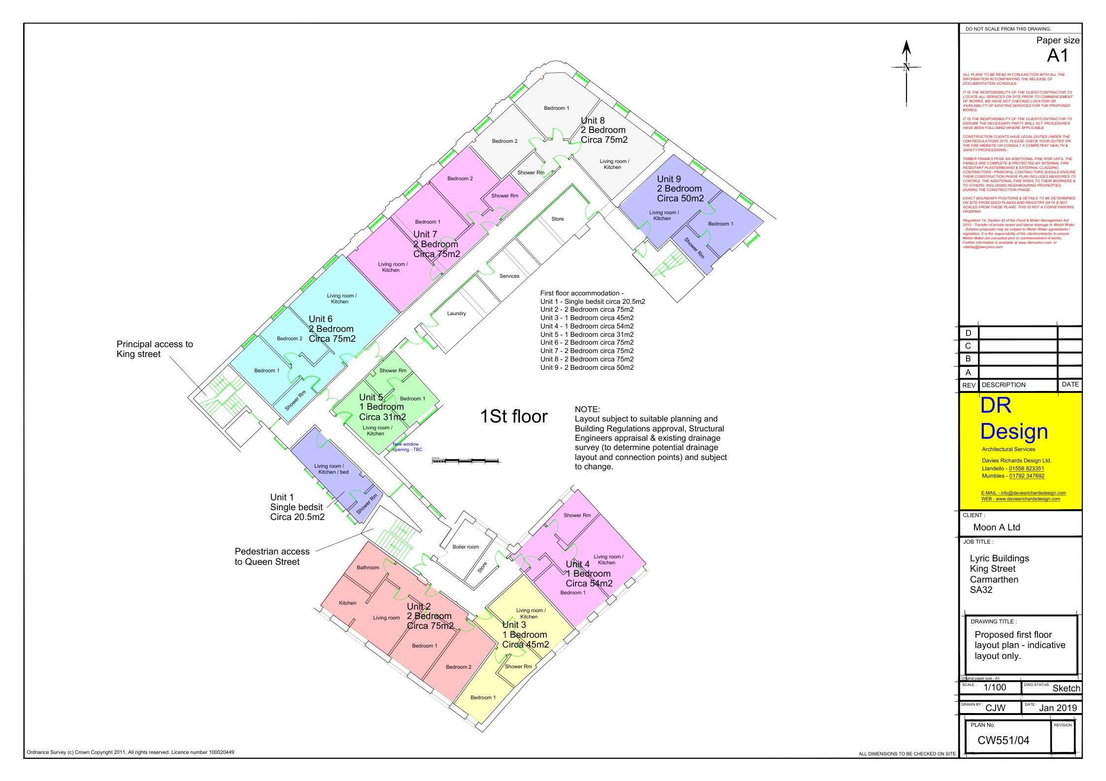
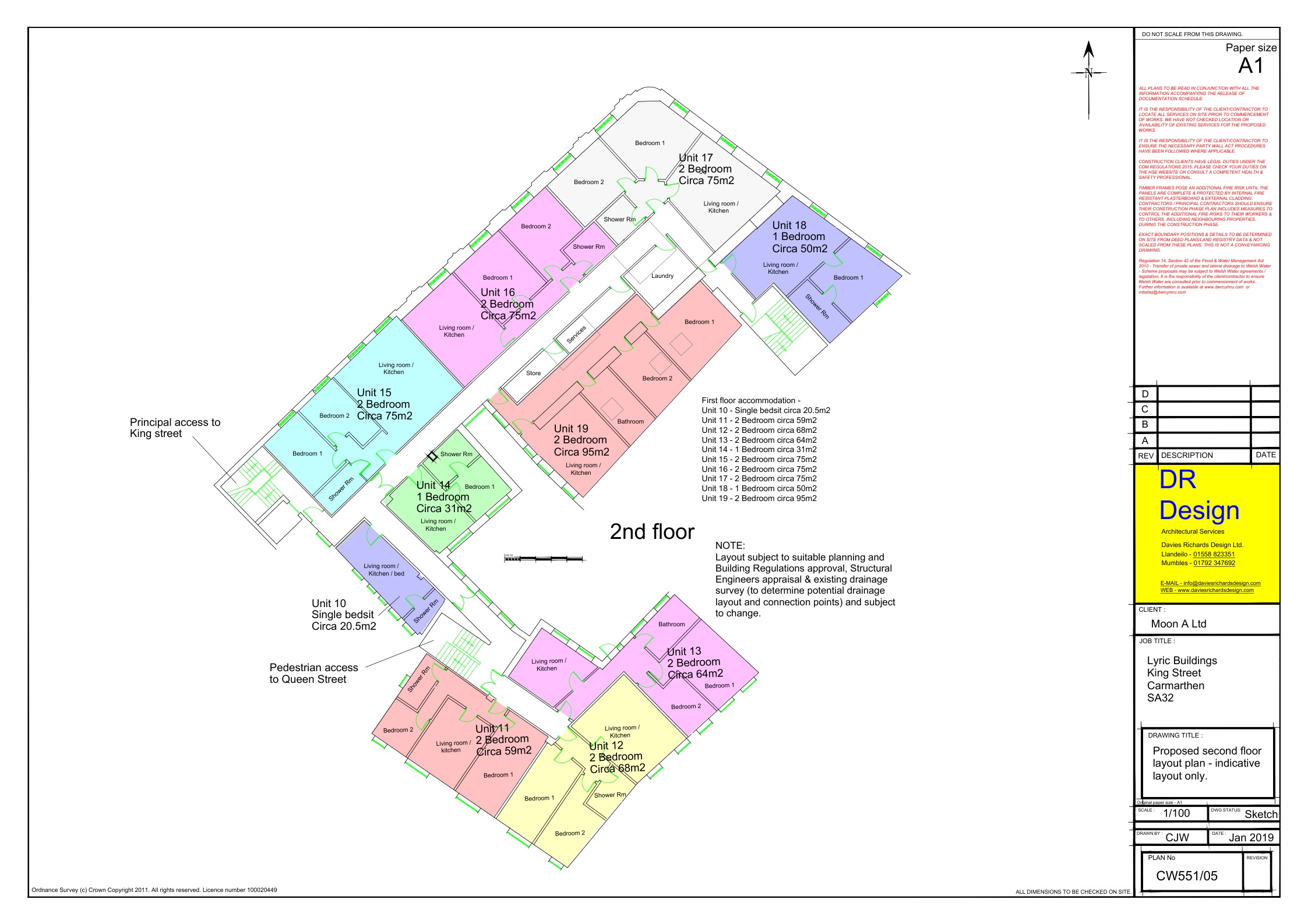
We offer
spaces from 31m2 to
75 m2 of former office to convert into flat or aparthotel
for tourist under the use class C1 (Hotel).
Symbolic rent of £1 per month per m2 for the first 4 years in order and then £2 per month per m2 for the next 6 years and then £5 per m2 per month indexed by inflation.
The
lease is long leasehold from 10 to 45 years long with a break option
every 5 years. As being a short leasehold, the cost of the leasehold
is tax deductible from income tax.
Also,
the Lyric Building is a listed building therefore you will have no
vacant business rent if you don’t let it.
Each aparthotel could be
turning as a dormitory for student 10 people to 30 people depending
of the size.
There is
a large available of 20 units and you would be able to apply to
several AppartHotel.
An
aparthotel is taxed on business rate but it can be turned into a
flat and so council tax would apply (use class C3).
The
manager of the bar below can organize the marketing and the
management of your customer for 30% commission.

