office (+44) -203-6954041
(+44) -7954-777678
CARMARTHEN
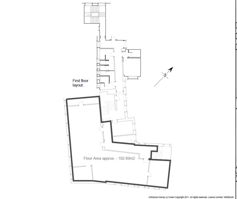
The 1st Floor office is under offer/subject to contract. It includes two offices recently refurbished at the highest standard: One office of 410 m2 and another office of 182 m2.
The larger 410 m2 office with view on king Street has period wooden hash window.



Both offices are heated by gaz but also beneficiate from a mutishishi multi city HVAC.
The office are accesible through a lift on King street.